![]() | Vysoko výkonná a luxusne vypracovaná krbová vložka IQH 43 od výrobcu Nestor Marin, prináša moderný luxus a hypnotizujúce plamene vďaka integrovanej technológie spaľovania Woodbox®. |
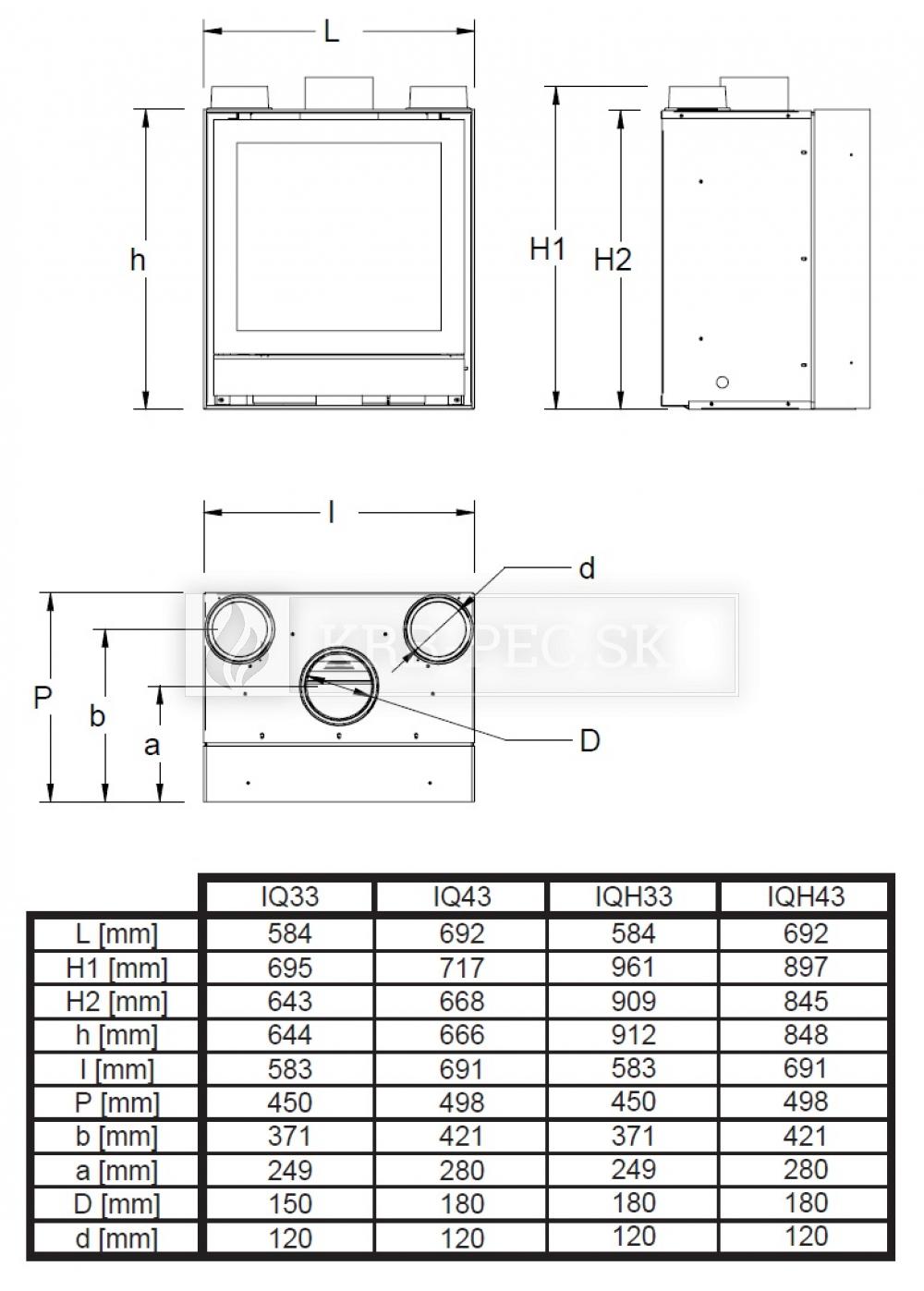
Nestor Martin IQH 43
luxusná teplovzdušná krbová vložka s rovným presklením
Luxusné a vysoko kvalitné krbové vložky od známeho výrobcu Nestor Martin Vám prinášajú mimoriadnu kvalitu a účinnosť vykurovania. Čisté línie a moderný vzhľad ich robia aj vynikajúcim kusom nábytku, harmonicky začleneného do Vášho domova.Krbové vložky Nestor Martin umožňujú odvádzanie tepla aj do ďalších miestností v dome vďaka integrovaným dúchadlám a dvom výstupom horúceho vzduchu. Bezpečnostný systém po otvorení dverí automaticky vypne ventiláciu a zabráni tomu, aby ventilátor nasával popol a odvádzal ho do miestnosti. Krbová vložka IQH 43 je dostupná v rôznych tvaroch a veľkostiach s rôznymi tepelnými výkonmi.
Hlavnou výhodou krbových kachlí od výrobcu Nestor Martin je okrem ich vysokej kvality a účinnosti aj ich flexibilita. Každý model ponúka možnosť výberu jedného zo štyroch podstavcov, ktoré umožňujú otáčanie kachlí o 360 stupňov, vďaka čomu si môžete vychutnať pohľad na oheň z každého kúta miestnosti. K dispozícii je aj samostatný rotačný systém, vďaka ktorému si môžete vytvoriť ľubovoľný podstavec a neprídete o možnosť otáčania kachlí. Kachle sú vybavené spaľovacou komorou využívajúcu technológiu spaľovania Woodbox® a pre Vaše pohodlie je voliteľnou výbavou aj termostatické diaľkové ovládanie.
VLASTNOSTI:

Technológia Woodbox®
Technológia Woodbox umožňuje kombinovať teplo a jednoduchosť používania s vynikajúcim výkonom spaľovnia. Stačí len stlačiť tlačidlo na diaľkovom ovládači a získate všetky výhody technológie Woodbox®.
Patentovaná spaľovacia technológia od Nestor Martin využíva kombináciu prírodného komínového ťahu a predhriateho vzduchu, ktorý sa pomaly a rovnomerne pohybuje smerom k plameňu. Tým sa dosahuje ohromujúcehio efektu, od obrovských divokých plameňov, až po jemný tanec ohňa.
Jedinečným doplnkom krbových vložiek a kachlí značky kachlí Nestor Martin je aj ich programovateľné termostatické diaľkové ovládanie, ktoré Vám umožňuje kedykoľvek pohodlne zvýšiť, alebo znížiť výkon, resp. zrýchliť, alebo spomaliť samotné horenie. Zariadenie môže pracovať v manuálnom, alebo automatickom režime. Pri manuálnom režime stačením tlačidiel + a - regulujete prívod vzduchu a tým jednoducho zvyšujete, alebo znižujete intenzitu horenia. Kedykoľvek môžete prejsť do automatického režimu, kde si môžete nastaviť požadovanú teplotu a Vaše kachle sa vďaka vstavanému termostatu o všetko postarajú. Diaľkové ovládanie od Nestor Martin poskytuje väčšiu flexibilitu a pohodlie, ako kedykoľvek predtým.

Vďaka technológií Woodbox® dokážu krbové kachle spaľovať viac ako 10 hodín v úspornom (nočnom) režime a to bez prikladania. Pohľad na plamene a neuveriteľne presné dômyselné ovládanie intenzity horenia ohňa sú jednoducho bezkonkurenčné. Je celosvetovo známe, že práve spaľovacia technológia je tou, ktorá robí krbovú vložku, alebo kachle originálom od Nestor Martin.
Technológia Woodbox® uľahčuje obsluhu krbových kachlí a ponúka nasledujúce výhody:
• Spaľovací systém obsahujúci kombinované dodatočné spaľovanie
• Vynikajúci výkon
• Extrémne nízke emisie
• Presnú kontrolu nad rýchlosťou horenia a výkonu
• Systém oplachu skla, ktoré ho udržiava vždy čisté
• Dodatočný prívod vzduchu pre jednoduchšie založenie ohňa
• Vzduchotesnú spaľociu komoru
• Jednoduchú obsluhu
Voliteľné príslušenstvo:
Termostatické dialkové ovládanie
Nestor Martin Vám ponúka jedinečnú možnosť regulácie intenzity horenia Vašich krbových vložiek a kachlí s inovatívnou technológiou spaľovania WOODBOX® a to všetko z pohodlia Vášho kresla. Ovládanie môžete prepínať meszi manuálnym, alebo automatickým režimom. V manuálnom režime máte možnosť ovládať intenzitu horenia pomocou tlačidiel + -. V automatickom režime si môžete nastaviť želanú teplotu miestnosti a o ostatné sa už nemusíte starať, keďže intenzita horenia je automaticky ovláda vďaka zabudovanému snímaču teploty.
Liatinové krbové kachle od spoločnosti Nestor Martin, európskeho lídra v oblasti domácej vykurovacej techniky, sú výsledkom nekompromisného inovatívneho inžinierstva a viac ako 150 ročných skúseností. Značka Nestor Martin je už dnes po celom svete prestížnym menom. Je to značka, ktorá je synonymom tepla, kvality, odolnosti, bohatých skúseností a tradície.
Zakladatelia spoločnosti Nestor Martin boli vždy v úzkom spojení s myšlienkami techologických inovácií, teda každé zariadenie Nestor Martin so sebou prináša bezkonkurenčnú technologickú odbornosť, funkčnosť a prémiovú kvalitu. Medzinárodne patentovaný systém spaľovania WOODBOX® je najdôležitejším pokrokom v technológii spaľovania tuhého paliva v tomto desaťročí. Prináša vysokú účinnosť, zníženú spotrebu paliva, extrémne nízke emisie, ako aj veľkolepý tanec plameňov. Modely s integrovanou technológiou WOODBOX® sú zároveň prvé krbové kachle na spaľovanie dreva s programovateľným termostatickým diaľkovým ovládaním. Či už dávate prednosť ladnej jednoduchosti súčasného moderného štýlu, alebo radšej klasickej elegancii krbových kachlí, Nestor Martin má pre Vás vždy riešenie, ktoré hľadáte.
| INDIVIDUÁLNA CENA |
